「収納・動線・デザイン、すべてを備えた理想の住まい」
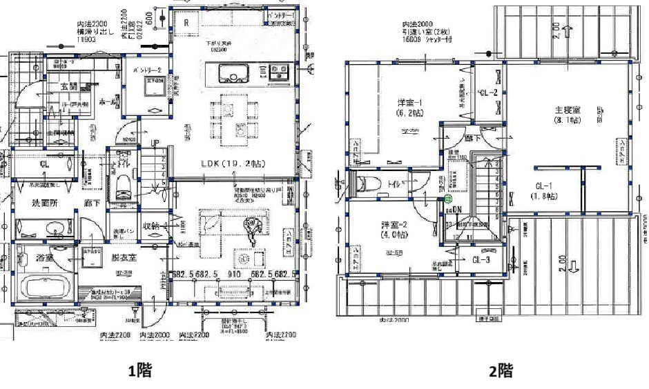
大容量パントリーや回遊できる家事動線で、日々の生活をスムーズに。
脱衣室には物干しスペースを備え、洗濯から片付けまでを効率的に。
キッチンの下がり天井には木目調のクロスを施し、空間にアクセントを加えデザイン性と機能性を兼ね備えたお家です。
お施主様のご厚意により見学会を開催します。
家づくりを終えられて実際にお住みになられているオーナー様のお話を聞くことは、とても参考になるはずです。
住み心地や使い勝手などお家づくりで気になるところをこの機会に是非聞いてみてください!



