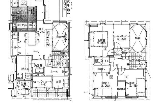
「吹抜けリビングと回遊動線で、暮らしやすさを丁寧にカタチにした3LDK」
19帖のLDKは吹抜けから光を取り込み、素材感を活かした落ち着きのある空間。
回遊動線と豊富な収納で毎日の家事や暮らしがスムーズに繋がる住まいです。
オークの床や木目の建具、アイアンやグレーを効かせた内装が上質で洗練された雰囲気を演出しています。
お施主様のご厚意により見学会を開催します。
家づくりを終えられて実際にお住みになられているオーナー様のお話を聞くことは、とても参考になるはずです。
住み心地や使い勝手などお家づくりで気になるところをこの機会に是非聞いてみてください!



