「玄関を開けた瞬間、空気感が違う家」
玄関を開けると一番最初に目に留まる天然石調のエコカラットと間接照明が、高級感のある玄関を演出。
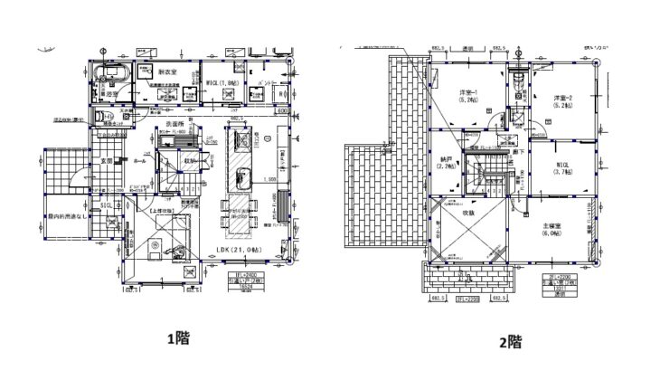
吹抜けのある開放的なLDKは、グレーを基調にした落ち着きのある空間です。
回遊動線や充実した収納で、デザインと暮らしやすさを両立したお家です。
お施主様のご厚意により見学会を開催します。
家づくりを終えられて実際にお住みになられているオーナー様のお話を聞くことは、とても参考になるはずです。
住み心地や使い勝手などお家づくりで気になるところをこの機会に是非聞いてみてください!


