上質で洗練されたホテルライクな空間と、
木の温もりを感じるナチュラルテイスト。
異なる魅力をバランスよく取り入れた住まいです。
落ち着いた色合いと素材感が調和し、
日常の中に特別感と心地よさをもたらします。
家族がゆったりとくつろげる、上質でやさしい暮らしを叶える住まいです。
Open House
オープンハウス情報
2026/05/01~2026/06/30











01
【エアフローシステム】
Airフローシステムとは、エアコンでつくった空気を家全体に循環させ、室内の温度差を少なくする空調システムです。
リビングやホールなどに設置したエアコンの空気を、循環ファンとダクトを通して各部屋へ送ることで、家全体を快適な温度環境に保ちます。
各部屋にエアコンを設置する必要が少なく、少ないエネルギーで効率よく冷暖房できるのも特徴です。
廊下や脱衣所なども温度差が生まれにくいため、住まい全体を快適に保ち、ヒートショック対策にもつながります。
02
【タタミコーナー】
リビングの一角に設けたタタミコーナーは、
家族が気軽にくつろげる落ち着きのあるスペース。
畳のやさしい質感が空間に温もりを添え、
お昼寝や読書、子どもの遊び場など、さまざまな使い方ができます。
暮らしにやすらぎをプラスする、心地よい和の空間です。
03
【太陽光パネル】
自宅で発電した電力を使用することで、電気料金を大幅に削減することができます。特に太陽光パネルが設置された地域の日照時間が長いと、電力の自給自足が可能となり、経済的なメリットが高まります
| 敷地面積 | 40.77坪 134.78㎡ |
|---|---|
| 建物面積 | 36.81坪 121.72㎡ |
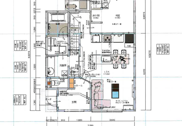
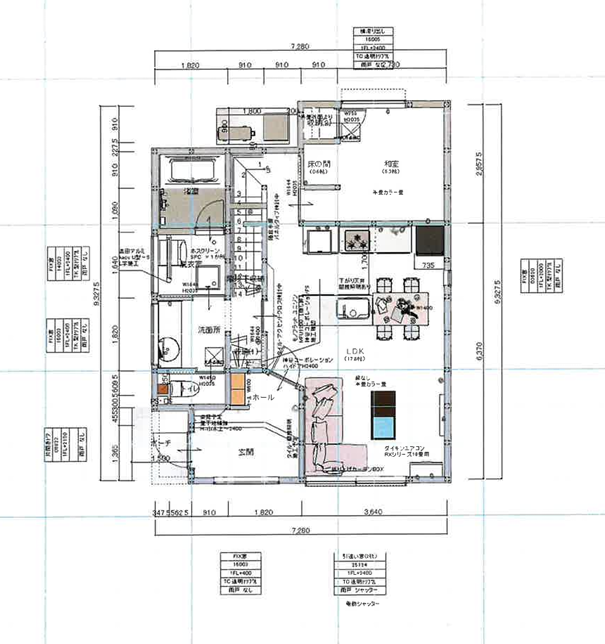
| 1階 | LDK 和室 洗面 WC・脱衣室・浴室 |
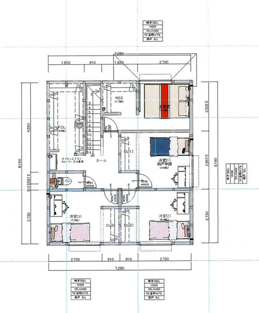
| 2階 | 納戸 洋室×2 主寝室 WIC FCL |
上質で洗練されたホテルライクな空間と、
木の温もりを感じるナチュラルテイスト。
異なる魅力をバランスよく取り入れた住まいです。
落ち着いた色合いと素材感が調和し、
日常の中に特別感と心地よさをもたらします。
家族がゆったりとくつろげる、上質でやさしい暮らしを叶える住まいです。
ご来場で最大10,000円分の
ギフト券をプレゼント
見学会を予約する