「人も猫も、好きな場所でくつろげる暮らし」
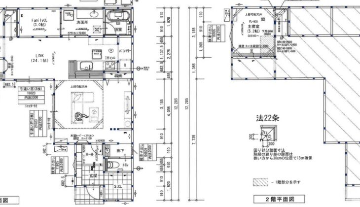
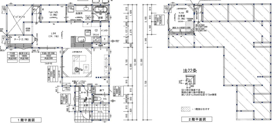
キャットウォークを備えたリビングで、猫が気ままに過ごす姿に癒される毎日。
ダイニングのすぐ横には夫婦の為のヌークスペースが。窓辺のカウンターで晩酌を楽しむひと時は、お施主様こだわりの癒しの空間です。
スキップフロアの寝室やたっぷりのファミクロなどコンパクトながら機能的な間取りです。
お施主様のご厚意により見学会を開催します。
家づくりを終えられて実際にお住みになられているオーナー様のお話を聞くことは、とても参考になるはずです。
住み心地や使い勝手などお家づくりで気になるところをこの機会に是非聞いてみてください!
																					
																					
																					
																					
																					
																					
																					
																					
																					
																					
								


