「吹抜けが心地よくつなぐ、家族の時間が流れるお家」
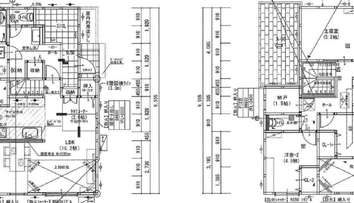
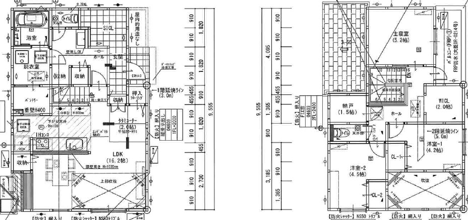
吹抜けのあるリビングが開放感を生み出す、約30坪の3LDKのお家。
くつろげる畳コーナーや、お子様の勉強やちょっとした作業ができる造作カウンターを設置し、家族の時間も自分の時間も、心地よく過ごせる工夫がいっぱいのお家。
2階には3つの洋室とウォークインクローゼット、納戸を備え収納力も充実しています。
お施主様のご厚意により見学会を開催します。
家づくりを終えられて実際にお住みになられているオーナー様のお話を聞くことは、とても参考になるはずです。
住み心地や使い勝手などお家づくりで気になるところをこの機会に是非聞いてみてください!



