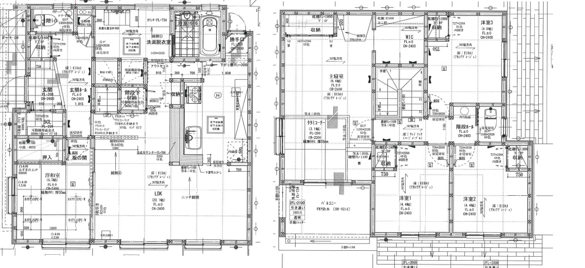
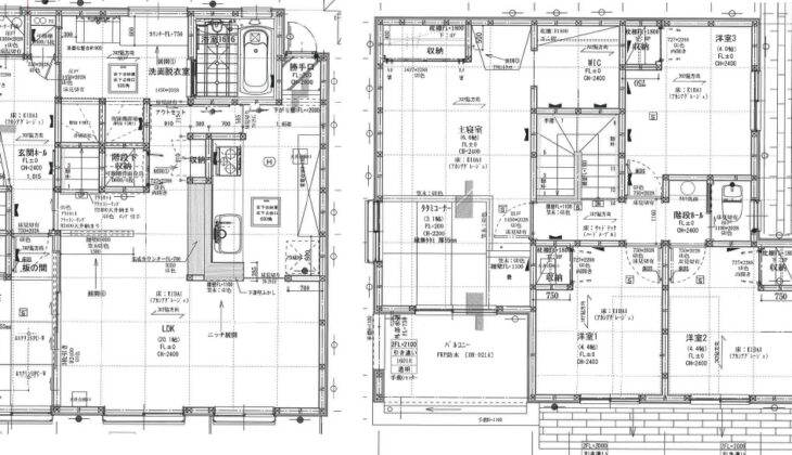
「暮らしを整える工夫が詰まった快適なお家」
アカシア・グレージュの床がやさしく広がるLDKは、20帖超えのゆとりある空間にレンガ調クロスがアクセントを添えるおしゃれな空間。
キッチンはダークグレーの抽象柄の扉カラーでリビング・ダイニングの雰囲気と調和させ、キッチン横の腰壁のニッチや前面カウンターなど、使い勝手にもこだわったお家です。
お施主様のご厚意により見学会を開催します。
家づくりを終えられて実際にお住みになられているオーナー様のお話を聞くことは、とても参考になるはずです。
住み心地や使い勝手などお家づくりで気になるところをこの機会に是非聞いてみてください!



